Magazzino    Roma


Rif. 107754



 0    1    1    402mq      Salva tra i Preferiti


Descrizione

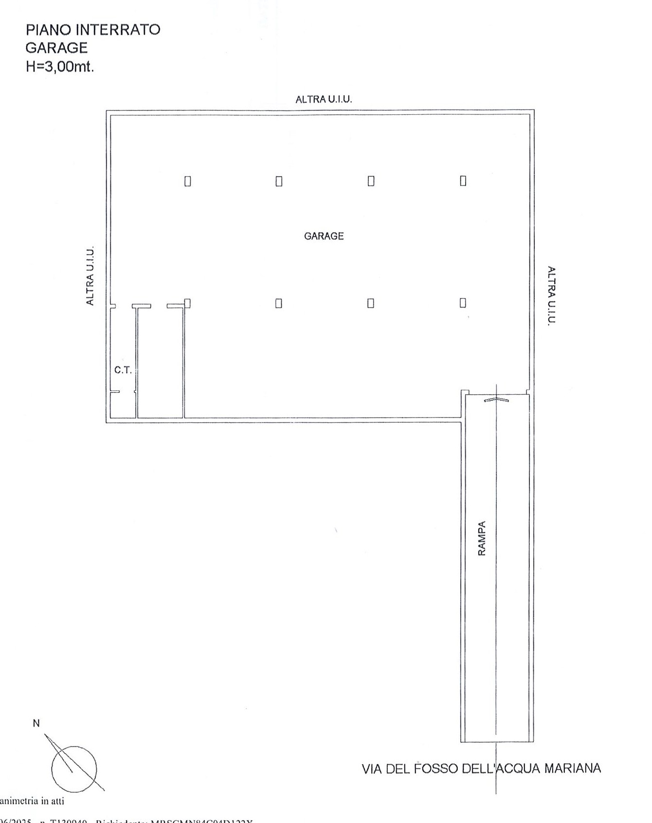
LOCALE MAGAZZINO - VIA DEL FOSSO DELL'ACQUA MARIANA 118, RM La Bonifazi immobiliare propone in vendita a Morena e precisamente in Via del Fosso dell'Acqua Mariana, un magazzino/garage cat. C/6 posto al piano seminterrato di 402 mq, in ottime condizioni interne con cancello elettrico, ampia rampa d'accesso, intercapedine, un bagno e locale tecnico. Non ci sono spese condominiali. LIBERO DA SUBITO. Ideale come deposito, autorimessa, laboratorio o spazio polifunzionale. L’immobile si trova in una zona residenziale e tranquilla, ben collegata ai servizi principali come negozi, scuole e mezzi di trasporto. La posizione strategica permette di raggiungere facilmente il centro città e altre zone di interesse, dista soltanto 3,5 Km dal Grande Raccordo Anulare e 8 Km dal Centro di Frascati. Il Gruppo Bonifazi opera nel settore immobiliare dal 1995 con agenzie immobiliari presenti su gran parte del territorio nazionale. Il Franchising Immobiliare Bonifazi mette a disposizione tutta l’esperienza maturata in anni di attività con la volontà di trasferire questo prezioso know-how ai propri affiliati, attraverso il Manuale Operativo Bonifazi che racchiude una metodologia di lavoro precisa e capillare, valida per ogni punto vendita.

Condividi
           STAMPA IMMOBILE

Caratteristiche immobile

Localitá Roma, Roma
Superficie Fabbricato 402 mq
Condizioni Abitabile
Riscaldamento Assente
Locali 1
Bagni 1
Piano 0 ° piano
Terrazzo SI
Balcone SI
Giardino SI
Posto Auto SI

Classe Energetica


G

Ipe


0

Agenzia Immobiliare
Frascati

Via di Vermicino, 566/A - 00133 Roma (Frascati) Roma (Frascati) (RM)
+39 327/04.15.267
+39 320/67.11.895
frascati@bonifazi.it

 Chiamaci  Cellulare

Contattaci ora per avere tutte le informazioni


Letta l'informativa del Franchisor e l'informativa dell'Agenzia ai sensi dell'Art. 13 D.Lgs 196/03, Presto il consenso al trattamento dei miei dati personali per le finalità di cui ai punti 1 e 2.