Appartamento    Grottaferrata


Rif. 108241



 2    3    1    70mq      Salva tra i Preferiti


Descrizione

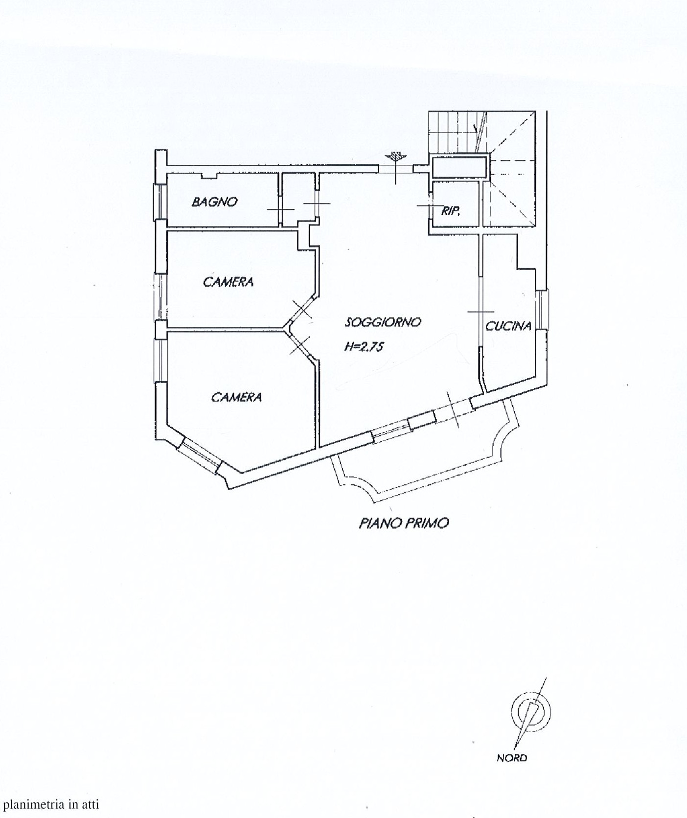
Trilocale viale San Nilo, Centro, Grottaferrata La Bonifazi Immobiliare propone in vendita a Grottaferrata in Via Cesare Battisti, angolo viale San Nilo, in zona centralissima, un comodo trilocale situato al primo piano di una piccola e signorile palazzina di soli due piani. Dall'immobile è possibile raggiungere a piedi il centro del paese, la piazza principale, tutte le attività commerciali ed essenziali e le scuole di ogni grado. L'immobile è così disposto: salone con angolo cottura a vista, due camere, bagno con doccia, ripostiglio e balcone. Internamente si presenta in ottime condizioni, rifinito con parquet a spina, infissi in legno doppio vetro, persiane in ferro, porta blindata, porte in legno massello, climatizzazione, videocitofono. Palazzina di recente costruzione e senza costi condominiali. Il Gruppo Bonifazi opera nel settore immobiliare dal 1995 con agenzie immobiliari presenti su gran parte del territorio nazionale. Il Franchising Immobiliare Bonifazi mette a disposizione tutta l' esperienza maturata in anni di attività con la volontà di trasferire questo prezioso know-how ai propri affiliati, attraverso il Manuale Operativo Bonifazi che racchiude una metodologia di lavoro precisa e capillare, valida per ogni punto vendita.

Condividi
           STAMPA IMMOBILE

Caratteristiche immobile

Localitá Grottaferrata, Roma
Superficie Fabbricato 70 mq
Condizioni Abitabile
Riscaldamento Autonomo
Locali 3
Bagni 1
Piano 1 ° piano
Balcone SI

Classe Energetica


G

Ipe


0

Agenzia Immobiliare
Frascati

Via di Vermicino, 566/A - 00133 Roma (Frascati) Roma (Frascati) (RM)
+39 327/04.15.267
+39 320/67.11.895
frascati@bonifazi.it

 Chiamaci  Cellulare

Contattaci ora per avere tutte le informazioni


Letta l'informativa del Franchisor e l'informativa dell'Agenzia ai sensi dell'Art. 13 D.Lgs 196/03, Presto il consenso al trattamento dei miei dati personali per le finalità di cui ai punti 1 e 2.