Villa bifamiliare    Roma


Rif. 107766



 4    5    3    200mq      Salva tra i Preferiti


Descrizione

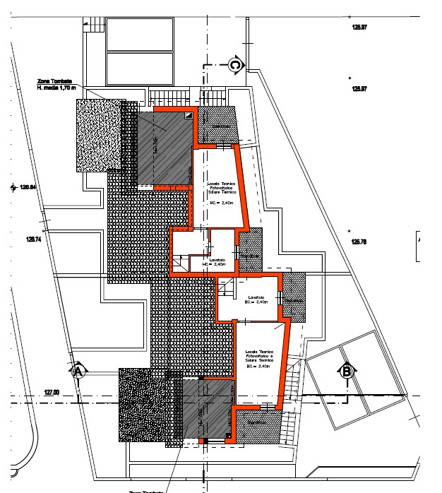
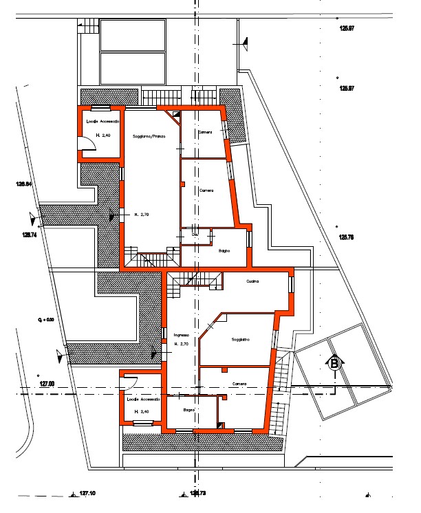
VILLE BIFAMILIARI di NUOVA COSTRUZIONE - VERMICINO La Bonifazi Immobiliare di Frascati propone in vendita in zona Vermicino, adiacente a Via di Vermicino e precisamente in Via Casale Antonioni, all'interno di un nuovo complesso residenziale composto da 7 unità di VILLE BIFAMILIARI E TRIFAMILIARI di NUOVA COSTRUZIONE di varie metrature a partire da 160 mq con giardini privati e box auto di proprietà. Le ville sono disposte su tre livelli e sono composte da piano terra residenziale, soffitta e sala hobby con finestre un metro fuori terra. Le ville saranno altamente rifinite e saranno dotate di impianto termico a pavimento, pannelli solari per produzione di acqua, 1KW di Fotovoltaico e pannelli solari. L'immobile si trova in una zona residenziale e tranquilla ma ben servita da negozi e mezzi di trasporto. Nei pressi di Via di Passolombardo, vicino a scuole, bar, al centro commerciale e all' Università di Tor Vergata. A pochi chilometri dal GRA e ben collegato per raggiungere la fermata metro A Anagnina. ****Le presenti informazioni sono meramente indicative e non costituiscono elementi contrattuali***** CONSEGNA Dicembre 2025. Per maggiori informazioni su tipologie, metrature e prezzi contattare l'agenzia per un appuntamento. Il Gruppo Bonifazi opera nel settore immobiliare dal 1995 con agenzie immobiliari presenti su gran parte del territorio nazionale. Il Franchising Immobiliare Bonifazi mette a disposizione tutta l’esperienza maturata in anni di attività con la volontà di trasferire questo prezioso know-how ai propri affiliati, attraverso il Manuale Operativo Bonifazi che racchiude una metodologia di lavoro precisa e capillare, valida per ogni punto vendita.

Condividi
           STAMPA IMMOBILE

Caratteristiche immobile

Localitá Roma, Roma
Superficie Fabbricato 200 mq
Condizioni Nuovo
Riscaldamento Autonomo
Locali 5
Bagni 3
Piano 0 ° piano
Terrazzo SI
Balcone SI
Giardino SI
Posto Auto SI

Classe Energetica


A

Ipe


0

Agenzia Immobiliare
Frascati

Via di Vermicino, 566/A - 00133 Roma (Frascati) Roma (Frascati) (RM)
+39 327/04.15.267
+39 320/67.11.895
frascati@bonifazi.it

 Chiamaci  Cellulare

Contattaci ora per avere tutte le informazioni


Letta l'informativa del Franchisor e l'informativa dell'Agenzia ai sensi dell'Art. 13 D.Lgs 196/03, Presto il consenso al trattamento dei miei dati personali per le finalità di cui ai punti 1 e 2.