Casa Indipendente    Montefiascone


Rif. 107801



 8    12    4    240mq      Salva tra i Preferiti


Descrizione

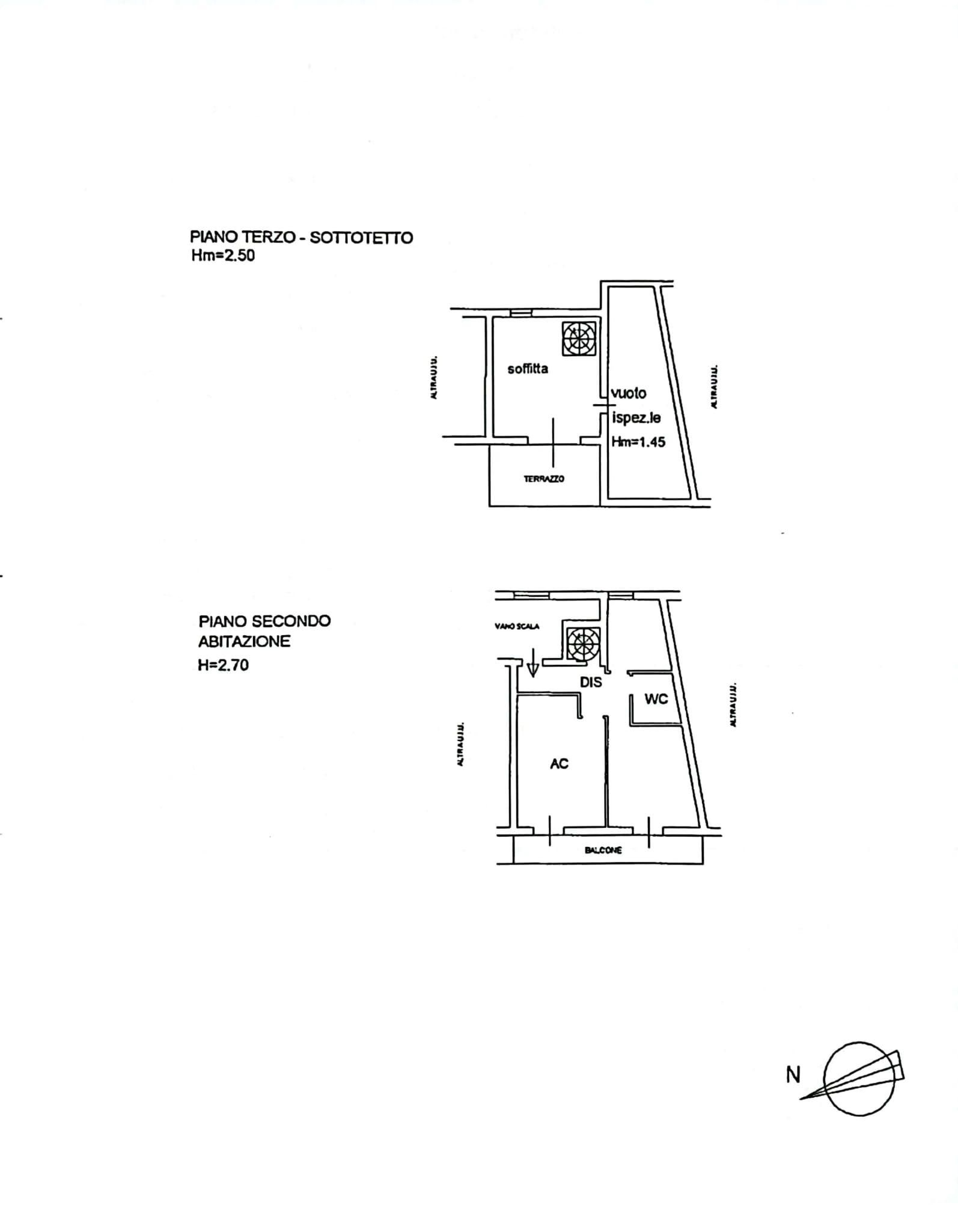
Montefiascone – Località Zepponami Intero Stabile con 4 Unità Abitative da Completare Internamente In zona ben servita e facilmente accessibile, proponiamo in vendita intero stabile composto da quattro unità abitative, ideale per diverse esigenze abitative o per un investimento immobiliare. L’edificio si sviluppa su due livelli: Piano Terra: Due appartamenti ciascuno composto da soggiorno con cucina a vista, due camere da letto, un bagno e balcone. Entrambe le unità dispongono di doppio ingresso, caratteristica che offre versatilità, maggiore privacy e facilità di utilizzo. Primo Piano: Due appartamenti con soggiorno e cucina, due camere da letto, un bagno, oltre a mansarda, terrazza e balcone, garantendo spazi esterni e buona distribuzione interna. Gli immobili si presentano da completare internamente, consentendo di personalizzare gli ambienti secondo le specifiche necessità, sia di tipo residenziale che per progetti turistico-ricettivi. La vendita riguarda l’intero complesso immobiliare, composto da 4 unità, ad un prezzo complessivo di € 120.000. Soluzione adatta per: • investimento e messa a reddito; • realizzazione di più abitazioni per nucleo familiare; • progetto turistico (affitti brevi o B&B).

Condividi
           STAMPA IMMOBILE

Caratteristiche immobile

Localitá Montefiascone, Viterbo
Superficie Fabbricato 240 mq
Condizioni Nuovo
Riscaldamento Autonomo
Locali 12
Bagni 4
Piano ° piano
Terrazzo SI
Balcone SI

Classe Energetica


G

Ipe


215

Agenzia Immobiliare
Montefiascone

VIA VERENTANA, 2 - 01027 Montefiascone (VT)
+39 0761/15.63.510
+39 324/53.22.442
montefiascone@bonifazi.it

 Chiamaci  Cellulare

Contattaci ora per avere tutte le informazioni


Letta l'informativa del Franchisor e l'informativa dell'Agenzia ai sensi dell'Art. 13 D.Lgs 196/03, Presto il consenso al trattamento dei miei dati personali per le finalità di cui ai punti 1 e 2.